- Rathaus & Politik
- Stadt & Leben
- Bauen, Umwelt & Wirtschaft
- Kur & Tourismus
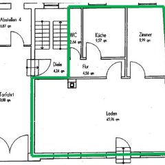
Büro/Gewerbefläche ca. 72m² Bahnhofstraße
Daten zur Ladenfläche
Objektdetails:
- Straße und Hausnummer: Bahnhofstraße 3
- 72m² Gesamtfläche
- 46m² Verkaufsfläche
- 3 Räume, darunter WC
Bausubstanz und Energieausweis
- Objektzustand: teilrenoviert
- Denkmalschutzobjekt
Ausstattung
- 2 große Schaufenster
Konditionen
- Bezugsfrei ab: 01.01.2026
- Vorherige Nutzung: Musikschule, Friseur, Einzelhandel (Schuhe und Bekleidung, Kosmetik
- Vorschlag für Folgenutzung: Frei
- Monatliche Nettomiete (€): 490 €
- Monatliche Nebenkosten (€): nach Verbrauch ca. 190 €
- Kaution (€): 1000
Galerie:
Wir vermitteln gern!
Suchergebnisse werden geladen
Keine Abteilungen gefunden.







