- Rathaus & Politik
- Stadt & Leben
- Bauen, Umwelt & Wirtschaft
- Kur & Tourismus
Bauleitplanung der Stadt Bad Camberg
hier: - Bekanntmachung zur Beteiligung der Öffentlichkeit nach § 13 Abs. 2 Baugesetzbuch (BauGB)
- Bekanntmachung des Aufstellungsbeschlusses gem. § 2 Abs. 1 BauGB
Die Stadtverordnetenversammlung der Stadt Bad Camberg hat in ihrer Sitzung am 24.06.2025 die Aufstellung der 1. Änderung des Bebauungsplanes „Oberselters Mineral- und Heilquellen GmbH“ beschlossen. Die Änderung erfolgt als textliche Änderung.
Der Aufstellungsbeschluss wird gem. § 2 Abs. 1 BauGB hiermit bekannt gemacht.
Für das Bauvorhaben der Oberselters Mineral- und Heilquellen GmbH hinsichtlich erforderlicher Brandschutzmaßnahmen in Verbindung mit der Herstellung einer Feuerwehr- und Betriebsumfahrt und einem Gebäudeumbau wird eine Bebauungsplanänderung erforderlich, da die derzeit festgesetzte GRZ = 0,8 durch die, wie vor beschriebenen vorgesehenen Maßnahmen überschritten werden muss.
Eine Überschreitung der aktuellen Festsetzung GRZ = 0,8 ist nur anhand einer Bebauungsplanänderung möglich.
Die textlichen Festsetzungen werden in Bezug auf die GRZ geändert. Die sonstigen Festsetzungen aus dem zugrunde liegenden Plan sowie die Art der Nutzung bleiben ansonsten vollumfänglich erhalten.
Die Planung ist aus dem rechtskräftigen FNP entwickelt.
Die Beteiligung der betroffenen Öffentlichkeit über die allgemeinen Ziele, Zwecke und Auswirkungen der Planung (Entwurf des Bebauungsplanes) erfolgt innerhalb der nachfolgenden Frist:
25.08.2025 bis einschl. 26.09.2025
(Dauer der Öffentlichkeitsbeteiligung: 33 Tage)
Die amtliche Bekanntmachung ist vom Tag ihres Erscheinens bis Ende der Beteiligungsfrist, unter den nachgenannten Links im Internet digital einsehbar:
- https://www.bad-camberg.de/rathaus-politik/aktuelles/amtliche-bekanntmachungen/
- zentrales Internetportal für die Bauleitplanung Hessen: https://bauleitplanung.hessen.de
Die zu veröffentlichenden Unterlagen sind wie folgt im Internet eingestellt und innerhalb der Veröffentlichungsfrist einsehbar:
- Internetportal Stadt Bad Camberg: https://www.bad-camberg.de/bauen-umwelt-wirtschaft/stadtplanung/bebauungsplaene-im-verfahren/
- zentrales Internetportal für die Bauleitplanung Hessen: https://bauleitplanung.hessen.de
Die Unterlagen liegen in Bad Camberg im Stadtbauamt, Verwaltungsgebäude III, Obertorstraße 10, 1. Stock, zu jedermanns Einsichtnahme und Unterrichtung zusätzlich in Papierform öffentlich während der allgemeinen Dienststunden (Bauamt) bzw. auch außerhalb dieser Zeiten nach Terminabsprache aus
Dienstag von 08:00 Uhr bis 12:00 Uhr und 14:00 Uhr bis 16:00 Uhr.
Donnerstag von 08:00 Uhr bis 12:00 Uhr und 14:00 Uhr bis 18:00 Uhr.
Zusätzlich werden die Unterlagen in Papierform in der Stadtverwaltung Bad Camberg als leicht zu erreichende Zugangsmöglichkeit während der oben genannten Auslegungsfrist zu den allgemeinen Dienststunden auch im Foyer der allgemeinen Verwaltung, Verwaltungsgebäude I, Im Amthof 15, Erdgeschoss in Bad Camberg zu jedermanns Einsicht bereitgehalten. Fachliche Rückfragen und Erläuterungen sind ausschließlich im Stadtbauamt möglich.
Die allgemeinen Dienststunden sind:
Montag von 8:30 bis 12:00 Uhr und von 14:00 Uhr bis 15:30 Uhr
Dienstag von 08:30 Uhr bis 12.00 Uhr und 14:00 Uhr bis 15:30 Uhr
Mittwoch von 08:30 Uhr bis 12.00 Uhr und 14:00 Uhr bis 15:30 Uhr
Donnerstag von 08:30 Uhr bis 12:00 Uhr und 14:00 Uhr bis 18.00 Uhr
Freitag von 8:30 Uhr bis 12:00 Uhr
Es besteht prinzipiell an allen Werktagen in den Dienstzeiten die Möglichkeit zur telefonischen Termin-Vereinbarung, um im Rahmen der Auslegung die Planunterlagen stets zur Einsicht zur Verfügung zu stellen.
Kontaktdaten sind:
Stadtbauamt, Telefon: 06434 – 202 611, E-Mail: Stadtbauamt@bad–camberg.de, Homepage: http://www.bad-camberg.de
Während der genannten Auslegungsfrist wird der betroffenen Öffentlichkeit gem. § 3 Absatz 2 BauGB Gelegenheit zur Äußerung und Erörterung gegeben. Auch Kinder und Jugendliche sind Teil der Öffentlichkeit im Sinne des § 3 Absatz 1 Satz 1 BauGB. Es wird gem. § 3 Abs. 2 Satz 4 BauGB darauf hingewiesen, dass zum Bebauungsplan
- Stellungnahmen und Anregungen während der Dauer der Veröffentlichungsfrist mündlich, zur Niederschrift oder schriftlich vorgebracht werden können.
- Stellungnahmen elektronisch übermittelt werden sollen, bei Bedarf aber auch auf anderem Weg abgegeben werden können.
- Nicht fristgerecht abgegebene Stellungnahmen bei der Beschlussfassung über den Bauleitplan unberücksichtigt bleiben können.
- Eine leicht zu erreichende Zugangsmöglichkeit nach § 3 Abs. 2 Satz 2 BauGB in der Gemeindeverwaltung besteht (siehe oben).
Über die fristgemäß eingegangenen Stellungnahmen und eingegangenen Anregungen wird die Stadtverordnetenversammlung der Stadt Bad Camberg nach Prüfung entscheiden. Das Ergebnis ist gem. den Vorgaben des § 3 Abs. 2 Satz 6 BauGB mitzuteilen bzw. kann während der Dienststunden im Bauamt der Kommune eingesehen werden.
Die betroffenen Behörden und sonstigen Träger öffentlicher Belange werden parallel zur Öffentlichkeit beteiligt.
Es wird darauf hingewiesen, dass ein Planungsbüro (Ingenieurbüro SLE Schönherr) mit der Durchführung des Verfahrens gem. § 4b BauGB beauftragt worden ist.
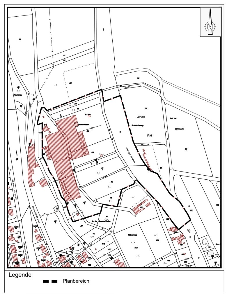
Die Lage des Plangebietes (entspricht dem Geltungsbereich des zugrunde liegenden rechtskräftigen Bebauungsplanes) kann der nachfolgenden Abbildung entnommen werden.
Ausgelegt wird gemäß § 3 Abs. 2 BauGB der Bebauungsplan bestehend aus:
• Exemplar der textlichen Änderung, Plankarte 1
• Begründung
Es gelten die Vorschriften des vereinfachten Verfahren nach § 13 Abs. 2 und 3 Satz 1.
Von der frühzeitigen Unterrichtung und Erörterung nach § 3 Abs. 1 und § 4 Abs. 1 BauGB wird abgesehen.
Es wird von der Umweltprüfung nach § 2 Abs. 4 BauGB, von dem Umweltbericht nach § 2a BauGB und von der Angabe nach § 3 Abs. 2 Satz 4 BauGB, welche Arten umweltbezogener Informationen verfügbar sind, sowie von der zusammenfassenden Erklärung abgesehen, da durch die Planung kein Vorhaben vorbereitet oder begründet wird,
• dass einer Pflicht zur Durchführung einer Umweltverträglichkeitsprüfung nach Anlage 1 zum Gesetz über die Umweltverträglichkeitsprüfung oder nach Landesrecht unterliegt;
und weil anzuhalten ist:
• dass keine Anhaltspunkte für eine Beeinträchtigung der in § 1 Abs. 6 Nummer 7 Buchstabe b BauGB genannten Schutzgüter bestehen;
• dass keine Anhaltspunkte dafür bestehen, dass bei der Planung Pflichten zur Vermeidung oder Begrenzung der Aus- wirkungen von schweren Unfällen nach § 50 Satz 1 des Bundes-Immissionsschutzgesetzes zu beachten sind.
Hinweise: Es wird darauf hingewiesen, dass
• gemäß § 3 Abs. 2 Satz 1 BauGB die Entwürfe der Bauleitpläne mit der Begründung, für die Dauer eines
Monats, mindestens jedoch für die Dauer von 30 Tagen, oder bei Vorliegen eines wichtigen Grundes für die
Dauer einer angemessenen längeren Frist im Internet zu veröffentlichen sind,
• gemäß § 3 Abs. 2 Satz 2 BauGB zusätzlich zur Veröffentlichung im Internet nach § 3 Abs. 2 Satz 1 BauGB
eine oder mehrere andere leicht zu erreichende Zugangsmöglichkeiten, etwa durch öffentlich zugängliche
Lesegeräte oder durch eine öffentliche Auslegung der in § 3 Abs. 2 Satz 1 BauGB genannten Unterlagen zur
Verfügung zu stellen sind,
• gemäß § 3 Abs. 2 Satz 4 Nr. 3 BauGB in Verbindung mit § 4a Abs. 5 BauGB Stellungnahmen, die im
Verfahren der Öffentlichkeitsbeteiligung nicht rechtzeitig abgegeben worden sind, bei der Beschlussfassung
über den Bauleitplan unberücksichtigt bleiben können, sofern die Gemeinde deren Inhalt nicht kannte und
nicht hätte kennen müssen und deren Inhalt für die Rechtmäßigkeit des Bauleitplans nicht von Bedeutung ist
Informationen zur Datenverarbeitung in der Bauleitplanung gemäß Artikel 13 und Artikel 15 der
Datenschutzgrundverordnung (DS-GVO):Im Rahmen der Abgabe verarbeitet die Kommune personenbezogene
Daten nach § 3 Baugesetzbuch (BauGB) und Artikel 6 Absatz 1 Satz 1 Nr. e) Datenschutz-Grundverordnung (DSGVO)
zur Wahrnehmung einer Aufgabe, die im öffentlichen Interesse liegt und im Rahmen der gemeindlichen
Planungshoheit. Im Rahmen einer Stellungnahme zu Bauleitplanverfahren werden persönliche Daten mit
vollständigem Namen, Anschrift, Telefonnummer und E-Mailadresse benötigt, um den Umfang der persönlichen
Betroffenheit oder das sonstige Interesse hinsichtlich des Bauleitplanverfahrens beurteilen zu können. Alle Daten
werden zur Bearbeitung der Stellungnahme verwendet. Zudem werden persönlichen Daten verwendet, um nach
Abschluss der Beteiligung der Öffentlichkeit (nach § 3 Absatz 1 Baugesetzbuch und § 3 Absatz 2 Baugesetzbuch)
während eines Bauleitplanverfahrens, die Stellungnehmer über das Ergebnis der Prüfung Ihrer Stellungnahme und
deren Berücksichtigung zu informieren.Aufgrund der gesetzlich vorgeschriebenen beziehungsweise zugelassenen
oder durch Ihre Einwilligung legitimierten Datenerhebung ist die Verarbeitung Ihrer personenbezogenen Daten
rechtmäßig. Sofern die rechtlichen Voraussetzungen erfüllt sind, haben betroffene Personen gem. Art. 15
Datenschutz-Grundverordnung das Recht eine Auskunft über die sie betreffenden verarbeiteten Daten einzuholen und
das Recht auf Berichtigung, Löschung und Einschränkung der Datenverarbeitung zu, sowie das Recht, Widerspruch
gegen die Verarbeitung der personenbezogenen Daten einzulegen, bzw. die Einwilligung zur Datenverarbeitung zu
widerrufen oder die Datenübertragung zu fordern. Sollte eine betroffene Person der Meinung sein, das ein
datenschutzrechtlicher Verstoß vorliegt, besteht das Recht auf Beschwerde bei der zuständigen Aufsichtsbehörde.
ANLAGE:
- Der Geltungsbereich der vorliegenden Planung umfasst den Geltungsbereich des zugrunde liegenden
Bebauungsplanes „Oberselters Mineral- und Heilquellen GmbH“ (ohne Maßstab)*
Nachfolgend eine schematische Abgrenzung des zugrunde liegenden Bebauungsplanes (Satzungsbeschluss 15.09.2009). Die Darstellung hat keine Rechtverbindlichkeit. Quelle SLE -Consult

2. Ausschnitt aus der Topographischen Karte (ohne Maßstab) zum Überblick der Lage des Planbereichs Bebauungsplan Quelle: www.geoportal-hessen.de Die Abgrenzung hat keine Rechtsverbindlichkeit und kennzeichnet nur die Lage des Planungsbereiches.

Bad Camberg, den 18.08.2025
Der Magistrat der Stadt Bad Camberg
Daniel Rühl
Bürgermeister